Mục Lục
Tổng quan dự án Thủ Thiêm Zeit River
Được đầu tư và phát triển bởi Tập đoàn GS Hàn Quốc, Thủ Thiêm Zeit River là dự án khu căn hộ cao cấp tại quận 2, xây dựng với quy mô 3,3ha với nhiều loại hình khác nhau như: officetel, căn hộ hạng sang, căn trệt thương mại và trung tâm thương mại nằm trên mặt tiền đại lộ Nguyễn Cơ Trạch, thuộc phân khu chức năng số 3, Khu Đô Thị Thủ Thiêm, Thành phố Thủ Đức.
Đây là dự án căn hộ thứ 2 được tập đoàn GS E&C phát triển tại Thành phố Hồ Chí Minh sau khi triển dự án Xi Riverview Thảo Điền thành công. Dự án Thủ Thiêm Zeit River được định vị là siêu phẩm căn hộ hạng sang 6 sao thuộc top đầu tại khu vực Quận 2. Vì vậy, khi sinh sống tại đây cư dân sẽ được được hưởng trọn những tiện ích nội, ngoại khu, không gian sống đẳng cấp và an ninh nghiêm ngặt.
Chủ đầu tư dự án Thủ Thiêm Zeit River
GS E&C được thành lập vào năm 1969 tại Hàn Quốc. Đến nay, công ty xây dựng GS E&C đã trải qua hơn năm thập kỷ phát triển vững mạnh trong các lĩnh vực như: năng lượng, môi trường, thiết kế kiến trúc, xây dựng, bất động sản… và đã đạt được nhiều thành tựu trong và ngoài nước.
Công ty xây dựng GS E&C có 28 công ty chi nhánh và văn phòng đại diện tại 27 quốc gia ở Châu Âu, Bắc Mĩ, Châu Á và Châu Phi.
Năm 2019, GS E&C được vinh danh ở vị trí thứ 24 trong tổng số 250 công ty xây dựng toàn cầu do Tạp chí Kỹ Thuật ENR (có trụ sở tại Mỹ) bình chọn. GS E&C được vinh dự là doanh nghiệp có chỉ số phát triển bền vững Down Jones 11 năm liên tiếp (2009 – 2020).
VGSE là công ty con thuộc sở hữu hoàn toàn của Công ty Xây dựng GS E&C Hàn Quốc. Với mong muốn mang lại cuộc sống thịnh vượng cho khách hàng trên toàn thế giới, VGSE luôn nỗ lực không ngừng dựa trên kinh nghiệm và kỹ thuật hiện đại của công ty mẹ để tạo ra những sản phẩm chất lượng và khẳng định tầm cỡ quốc tế trong từng dự án của mình.
Thông tin chi tiết dự án Thủ Thiêm Zeit River
| Tên dự án: | Thủ Thiêm Zeit River |
| Vị trí: | Nguyễn Cơ Thạch, Phường An Khánh, Quận 2, TP. Thủ Đức, TP. Hồ Chí Minh. |
| Chủ đầu tư phân khu: | Tập đoàn GS Engineering & Construction (GS E&C) |
| Nhà phát triển: | Công ty TNHH MTV Việt Nam GS Enterprise. |
| Nhà phân phối: | NPLand Vietnam |
| Quản lý vận hành: | Xi S&D |
| Đơn vị thiết kế: | PTW Architects |
| Đơn vị xây dựng: | GS E&C |
| Tổng diện tích: | Hơn 3,3ha |
| Mật độ xây dựng: |
|
| Qui mô dự án: | Khu nhà ở: gồm 2 tháp căn hộ cao cấp, tháp T1 cao 25 tầng và tháp T2 cao 32 tầng.
Khu vực khối đế: gồm Shophouse, khu thương mại, nhà phố kết hợp cảnh quan sân vườn và một số tiện ích tại tầng trệt. Khu vực đậu xe: gồm 2 tầng hầm (với 470 chỗ đậu xe hơi và 283 chỗ đậu xe máy) · Tỷ lệ diện tích chỗ đậu xe hơi/ căn hộ: 1.5 |
| Số lượng sản phẩm: | 300 sản phẩm bao gồm:
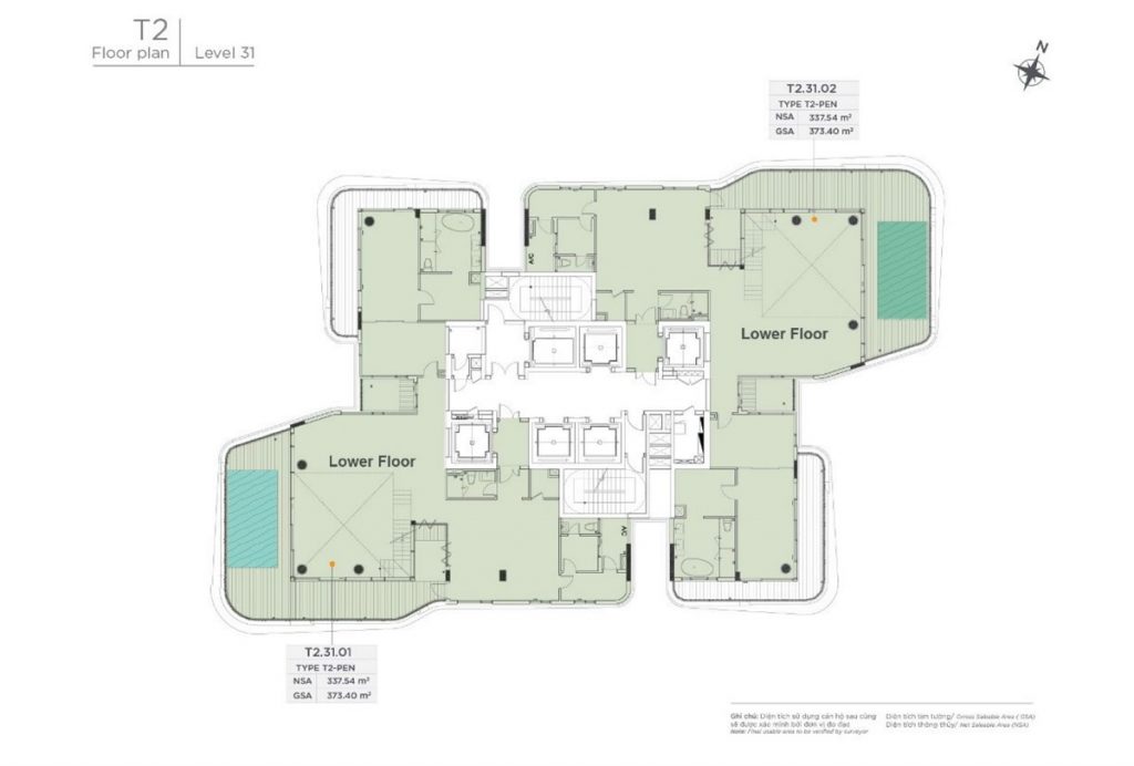
– 1 PN (60.62m2): 31 căn – 2 PN (88.09 – 97.17m2): 138 căn – 3PN (125.8 – 135.14m2): 71 căn – 4 PN (181.1 – 201.28m2): 29 căn – Duplex 4 phòng ngủ (183.34 – 215.71m2): 14 căn – Penhouse (373.4 – 392.45m2): 4 căn – Shophouse: 13 căn |
| Tiện ích nổi bật: |
|
| Tình trạng bàn giao: | Hoàn thiện cơ bản |
| Tính pháp lý: | Sổ hồng cho từng sản phẩm |
| Thời gian sở hữu: |
|
| Dự kiến bàn giao: | Quý IV/2024 |
| Giá bán: | Từ 150 – 250tr/m2 |
Vị trí dự án Thủ Thiêm Zeit River
Thủ Thiêm Zeit River sở hữu vị trí đắc địa trên mặt tiền đại lộ Nguyễn Cơ Trạch, thuộc phường An Khánh, Thành phố Thủ Đức, Thành phố Hồ Chí Minh. Đây là con đường huyết mạch kết nối Bình Thạnh qua cầu Thủ Thiêm 1 và kết nối Quận 4 qua cầu thủ Thiêm 4.
Dự án nằm tại phân khu chức năng số 3 nổi bật nhất tại bán đảo Thủ Thiêm trên tổng thể 8 phân khu chức năng tại Khu đô thị mới. Sở hữu vị trí hiếm hoi nằm trên trục đường huyết mạch xuyên tâm của khu địa đô thị và tầm view nhìn trực diện về hướng trung tâm thành phố.
Khu đô thị mới Thủ Thiêm được quy hoạch với định hướng phát triển thành một trung tâm mới hiện đại với các chức năng chính là trung tâm tài chính, thương mại, dịch vụ cao cấp, khu vực sở hữu vị trí chiến lược quốc gia. Được xem là khu trung tâm văn hóa, kinh tế, chính trị, khu vui chơi giải trí lớn nhất cả nước.
Bên cạnh đó, Thủ Thiêm Zeit River còn thừa hưởng vị trí kết nối giao thông thuận lợi đến các khu vực trung tâm, là khu phức hợp, tổ hợp kinh doanh hiện đại, cung cấp đầy đủ các dịch vụ mua sắm, giải trí, ẩm thực.
Từ vị trí của Thủ Thiêm Zeit River, cư dân dễ dàng di chuyển qua các Quận, huyện khác như:
- 01 phút di chuyển đến Quận Bình Thạnh, Khu đô thị Vinhomes Central Park, Sài Gòn Peal, The Manor qua cầu Thủ Thiêm 1 hiện hữu.
- 05 phút di chuyển đến Quận 9, Khu công nghệ cao Quận 9 thông qua đường Xa lộ Hà Nội.
- 05 phút di chuyển đến Quận 1 thông qua cầu Thủ Thiêm 2.
- 07 phút Di chuyển đến Quận 4, Quận 7, Quận 8 qua cầu Thủ Thiêm 3.
- 10 phút di chuyển đến Quận 4, Quận 5, Quận 6 qua đường Hầm Thủ Thiêm.
- 15 phút di chuyển đến Quận 7, huyện Nhà Bè qua cầu Phú Mỹ hoặc cầu Thủ Thiêm 4 trong tương lai.
Hứa hẹn sẽ là điểm đến thu hút du khách trong và ngoài nước khi có lợi thế về vị trí – nằm ngay trung tâm sầm uất của Khu đô thị Thủ Thiêm.
Tiện ích dự án Thủ Thiêm Zeit River
Tiện ích nội khu
Được tích hợp ngay trong dự án, Thủ Thiêm Zeit River có hơn 50 tiện ích đa dạng, phù hợp với mọi lứa tuổi, mang đến không gian sống chuẩn 5 sao xứng tầm đẳng cấp dành cho những cư dân thượng lưu:
- Công viên cây xanh mang đến cho cư dân những trải nghiệm giữa miền thiên nhiên thuần khiết.
- Khu trung tâm thương mại – tổ hợp kinh doanh hiện đại, cung cấp đầy đủ các dịch vụ mua sắm, giải trí, ẩm thực cho cư dân.
- Khu tiền sảnh lối với phong cách thiết kế sang trọng, tinh tế trong nội thất và không gian thoáng đãng.
- Sảnh lounge đón khách 5 sao được thiết kế dành cho những buổi gặp mặt trang trọng.
- Khu tập gym đẳng cấp nhất khu vực với những trang thiết bị hiện đại.
- Dịch vụ Spa cao cấp giúp thư giãn, nâng tầm sức khỏe và sắc đẹp của cư dân.
- Hồ bơi tràn bờ chuẩn resort với khu nước ngọt và nước mặn đem lại những trải nghiệm thú vị.
- An ninh 24/7, hệ thống phòng cháy chữa cháy hiện đại, camera quan sát các khu vực xung quanh 24/24
Tiện ích ngoại khu
Thủ Thiêm Zeit River nằm ngay trung tâm sầm uất của Khu đô thị Thủ Thiêm.vì thế dự án thừa hưởng toàn bộ hệ tiện ích trong bán đảo Thủ Thiêm đơn cử như:
- Về giáo dục: British International School, ACG, Quốc tế Úc AIS, trường Quốc tế TP.HCM IS,….
- Về y tế: bệnh viện quốc tế Mỹ, bệnh viện quốc tế Thảo Điền, phòng khám đa khoa quốc tế Hoàn Mỹ, …
- Về thương mại, dịch vụ: siêu thị Mega Market Quận, Big C, Lotte Mart, Vincom…
- Về vui chơi, giải trí: Quảng trường trung tâm Thủ Thiêm, cầu đi bộ Thủ Thiêm, tượng Bạch Đằng, phố đi bộ Nguyễn Huệ, khu vui chơi Snowtown Sài Gòn,….
- Cơ quan hành chính: Công an Thủ Thiêm Quận 2, phòng quản lý đô thị Quận 2, UBND quận 2…
Mặt bằng tiện ích dự án Thủ Thiêm Zeit River
Mặt bằng tiện ích dự án Thủ Thiêm Zeit River
Thủ Thiêm Zeit River được chủ đầu tư xây dựng trên quỹ đất rộng 9,125.8m2 với mật độ Khối đế thấp tầng (Podium): 56.13%, Tháp căn hộ (Tower): 18.5%. Trong đó dự án được thiết kế với khối đế gồm 4 tầng thương mại, tiện ích; 2 tòa tháp căn hộ, tòa T1 cao 25 tầng (06 căn/sàn) và T2 cao 32 tầng (08 căn/sàn), bao gồm các loại hình sản phẩm như: officetel, căn hộ hạng sang, căn trệt thương mại và trung tâm thương mại.
Mặt bằng tầng điển hình dự án Thủ Thiêm Zeit River
• Mặt bằng tầng điển hình tháp T1
• Mặt bằng tầng điển hình tháp T2
Mặt bằng căn điển hình dự án Thủ Thiêm Zeit River
• Mặt bằng căn điển hình tháp T1
• Mặt bằng căn điển hình tháp T2
Layout thiết kế căn hộ dự án Thủ Thiêm Zeit River
Phối cảnh dự án Thủ Thiêm Zeit River
Lý do đầu tư dự án Thủ Thiêm Zeit River
Thứ nhất, Vị trí đắc địa khi sở hữu hai mặt tiền đường chính của Thủ Thiêm là Nguyễn Cơ Thạch và Đại lộ Vòng cung. View trực diện hồ trung tâm và nhìn ra được sông Sài Gòn.
Thứ hai, Cảnh quan tuyệt mỹ, sông nước hiền hòa, được sông Sài Gòn thơ mộng bao quanh. Tầm view sông Sài Gòn độc bản, ôm trọn những công trình biểu tượng của thành phố Hồ Chí Minh như: Landmark, Bitexco,…
Thứ ba, Chủ đầu tư danh tiếng và giàu tiềm lực, một trong những tập đoàn đa lĩnh vực lớn nhất tại Hàn Quốc. Tập đoàn GS đã phát triển dự án XI Riverview Palace quận 2 và đang triển khai đô thị Zeit Geist Nhà Bè, sắp tới là dự án GS Metrocity Long Bình.
Thứ tư, Trung tâm kết nối cộng đồng thượng lưu với các sản phẩm và dịch vụ Hạng sang đáp ứng nhu cầu của giới nhà giàu tại trung tâm tài chính Thủ Thiêm.
Thứ năm, Là dự án nổi bật được đánh giá 6 sao của khu vực, được đầu tư tối ưu các mảng xanh, mang đến không gian sống trong lành và hiện đại. Pháp lý hoàn chỉnh, Chất lượng đảm bảo.
Giá bán dự kiến và tiến độ thanh toán dự án Thủ Thiêm Zeit River
- Giá bán dự kiến
- Tiến độ thanh toán
Hân hạnh được truyền tải thông tin đến quý khách hàng
Chúng tôi xin chân thành cảm ơn quý khách hàng đã dành thời gian quan tâm đến dự án Thủ Thiêm Zeit River.
Để biết thêm thông tin chi tiết, tin tức mới nhất cũng như tiến độ dự án Thủ Thiêm Zeit River, kính mời quý khách hàng liên hệ trực tiếp với chúng tôi để nhận được sự hỗ trợ và tư vấn từ các chuyên viên phòng kinh doanh về các sản phẩm.
Quý khách hàng có thể liên hệ với chúng tôi thông qua các phương thức dưới đây. Các chuyên viên tư vấn sẽ nhận được thông báo và liên hệ với quý khách nhanh chóng và sớm nhất.
Hotline: 0902 919 186 – Hỗ trợ tư vấn 24/24.
Địa chỉ: Nguyễn Cơ Thạch, Phường An Khánh, Quận 2, TP. Thủ Đức, TP. Hồ Chí Minh.







